Many (especially newer) inspectors don't realize the amount of liability that goes along with inspecting septic systems. It's not unusual to find inspectors that flush a dye tablet down the toilet and if nothing appears on the surface they write it up as serviceable.
The problem is, almost all components are underground. Obviously they can't be seen, and that's assuming that the septic system is an underground type. A number of types exist.

To give you an idea of what a real septic system inspection can entail, here's a copy of the Table of Contents from the Introduction to Onsite Wastewater Treatment Systems (Septic System) course from the National Association of Wastewater Transporters (NAWT). And...

The Table of Contents from the NAWT Inspection Manual for Onsite Wastewater Treatment Systems. And...

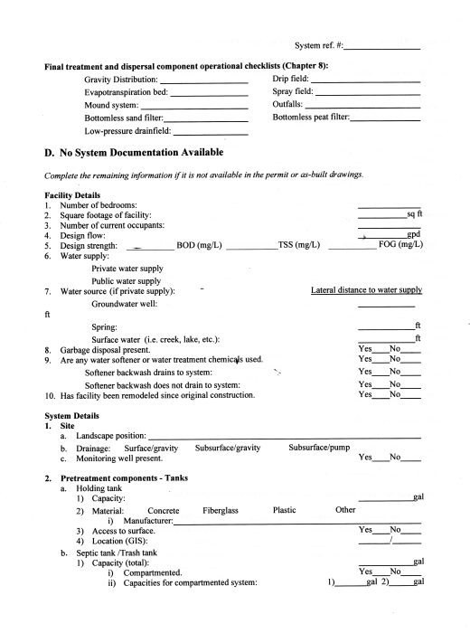
To give you an idea of the technical aspect of these inspections, here are just two pages from their 27-page checklist.
These systems can cost over $20,000 to replace. You don't want to be the inspector responsible for missing a system that needs replacement.
If you're going to inspect septic systems, get training. Be sure you know what you're doing!
